Facts:
· im Dachgeschoss
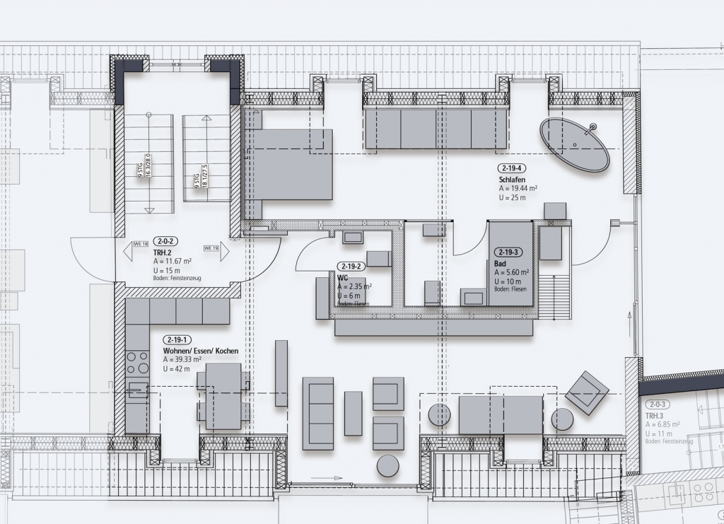
· Studio mit 2 Schlafzimmer
· mit freistehender Badewanne
· eigene große Dachterrasse am Wohnbereich (35m2)
· offener Essbereich mit Balkon
· alle Wohnungen in der Manufaktur mit Fußbodenheizung
· weit öffnende Balkon- und Terrassen-Fenster
· alle Wohnungen mit kompletter Küchensystemplanung zum Kauf oder Miete
· Nebenflächen, Galerien und Kellerräume nicht inkludiert! Abbildungen ähnlich!
· allgemeine Informationen: 23 Parkplätze, attraktive Außenanlage und 3 Treppenhäuser für optimale Zuwegung
Generelle Ausstattung aller Wohnungen
· Hochwertige Materialien aus dem Objektbereich
· Böden in moderner Naturholz-Optik (extrem pflegeleicht & strapazierfähig)
· Moderne, bodentiefe Fensterelemente nach EnEV
· SAT / TV / EDV Leitungen vernetzt in allen Wohnbereichen
· SAT und Kabel vorinstalliert
· moderne Schließanlagen und Lichtsteuerungen in den Treppenhäusern
· Steinböden in den Treppenhäusern
· signalweiße Innen-Türen mit Edelstahl-Beschlag
· anthrazitfarbene Eingangs-Türen mit Edelstahl-Beschlag
· Schaltersysteme und Steckdosen „ton in ton“
Generelle Ausstattung aller Badezimmer
· kalibrierte Feinsteinzeug-Fliesen mit dünnstem Fugenbild
· Metallic-Lack Applikationen
· Glatte, feine, weiß lackierte Wände
· graue bzw. anthrazitfarbene Bodenfließen in den Bädern
· Design Leuchten „Cube“ im Bad
· Große, bodenbündige Ganzglas-Duschkabinen mit Regenbrause
· Flächenbündige Edelstahl-Ablaufrinnen
· moderne Bad-Einrichtungen mit hochwertigen Markenprodukten




